Nhà Lắp Ghép 40 M2 Solar GPHome Ở Lâm Đồng
Nhà Lắp Ghép diện tích 40M2 Solar GPHome là 1 sản phẩm mới của GP solar
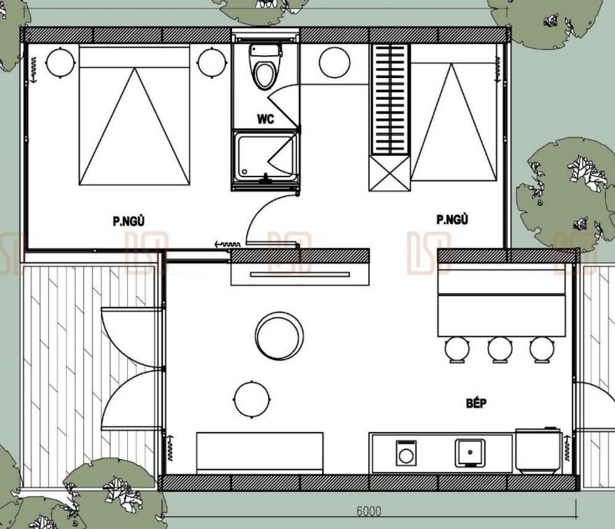
Sản phẩm hoàn thiện đầy đủ hệ thống điện mặt trời độc lập 5kwp rất phù hợp ở Tỉnh Lâm Đồng. 2 phòng ngủ 1 lớn và 1 nhỏ, có bếp và phòng khách, Phòng khách tùy biến thành giường ngủ khi có khách. Không gian sống đầy đủ tiện nghi, hòa vào thiên nhiên, có thể lắp đặt ở bất cứ nơi đâu xa xôi hay hẻo lánh.

+ Nhà lắp ghép diện tích 40 -50m2 này rất phù hợp với gia đình có diện tích đây 200-500m2 ở vùng không khí ôn hòa như Lâm Đồng, với ngôi nhà phong cách hiện đại hòa vào thiên nhiên bởi không gian mở của ngôi nhà giúp 1 gia đình hưởng thụ những ngày nghỉ ngơi thật tuyệt vời. Ngoài ra các diện tích còn lại là 1 khu vườn trồng rau sạch với nhiều loại rau củ.
+ Hệ thống điện độc lập solar: Với hệ thống điện mặt trời độc lập được tích hợp sẵn cho ngôi nhà, giúp giảm nhiệt, tiết kiệm tiền điện hàng tháng. Điều tuyệt vời hơn nữa là bạn có thể sử dụng ngay – lắp đặt nhà ở bất cứ nơi đâu.

Tổng quan về 1 số chi tiết của nhà lắp ghép GPHome:
Phần kiến trúc Nhà Hệ thống khung sắt chịu lực Hệ nan gỗ bao che chống ồn, chống nóng Gỗ nhựa 3D cao cấp Tôn xốp cách nhiệt Tấm cemboard 8li kèm sơn hoàn thiện.
Móng bê tông Phần cửa kính, vách kính Hệ thống cửa đi nhôm kính -Nhôm PMA hệ 4500 màu cafe – Kính an toàn 2 lớp 6.38 Vách kính cường lực – Kính 8 ly – Kính 10 ly.
Hoàn thiện điện nước, hệ thống chiếu sáng: Âm trần chiếu rọi 10w as vàng khoét lỗ 90mm, Âm trần tán quang 10w trung tính, Đèn đọc sách phòng khách, Téc nước inox 1000L + Hệ nan inox che cục nóng điều hoà.
Hạng mục phụ kiện: Chậu đơn inox 304, Vòi chậu rửa bát, Phụ kiện gỗ công nghiệp dự kiến, Hút mùi Nordor 600.
Đồ Gỗ nội thất: Tủ bếp trên Gỗ MFC chống ẩm. Tủ bếp dưới Gỗ MFC chống ẩm, chân sắt , bề mặt sử dụng đá granit nhân tạo. Tủ vali Gỗ MFC chống ẩm 550x550x1100, chân sắt. Giường ngủ kt 1m6x2m Gỗ MFC. Kệ đầu giường Mặt đá, chân sắt tròn. Sofa bed Đệm mút Việt Nhật bọc vải nỉ bỉ. Ghế bàn ăn Gỗ Tần Bì, chân sắt theo phối cảnh. Bàn trà Gỗ Tần Bì, chân sắt theo phối cảnh. Bàn bar Khung sắt hộp, gỗ MFC chống ẩm An Cường , mặt bàn đá granit nhân tạo.
Hạng mục rèm: Rèm vải, lớp Rèm phòng khách, phòng ngủ, Rèm chịu nước WC.
Hạng mục thiết bị vệ sinh: Chậu lavabo, Vòi chậu nóng lạnh Viglacera, Vòi xịt VS, Bồn cầu, Sen tắm.
Phần cuối cùng là hệ thống điện mặt trời cung cấp cho nhà sử dụng, phần này thay đổi theo từng nhu cầu sử dụng điện, từng địa phương.

Hãy liên hệ với chúng tôi để đặt cho mình căn nhà lắp ghép phù hợp với nhu cầu của bạn. Chúng tôi sẽ đưa ra các giải pháp hoàn thiện 1 ngôi nhà để bạn sử dụng thuận tiện và an toàn. Hãy gọi 09445402020 hoặc liên hệ với Chúng Tôi thông tin đầy đủ như sau:
Công Ty TNHH Công Nghệ GP Solar (GPHome)
8C-8D Đường Số 10, Phường Hiệp Bình Phước Quận Thủ Đức, TPHCM
Khu Công Nghiệp Lộc Sơn, Lộc Nga, Bảo Lộc Lâm Đồng.























![Lắp điện mặt trời sân thượng như thế nào? [Hướng dẫn đúng luật nhất] | GP Tech lap dat dien mat troi tren mai nha rooftop | GP Tech](https://gptech.com.vn/wp-content/uploads/2017/09/lap-dat-dien-mat-troi-tren-mai-nha-rooftop-300x138.jpg)















